

幸福感来源于什么?
幸福感来源于一家人能够吃上一顿团圆饭,幸福感来源于和自己的朋友逛街闲聊,幸福感来源于看一本好书 , 同时幸福感同样也来源于有一个专属于自己的小家 。
它是自己奋斗的象征和意义,也是最能够带给人踏实感的东西 。
所以我们看到现在许多年轻人为了买房,付出了很多,甚至我们上一辈的父母们也是一辈子在为房子而操劳着,又有多少人过着房奴的生活呢?

本期家装案例给大家分享的是一个32岁的北漂小姐姐的家 。
小姐姐是个设计师,毕业之后便留在了北京工作,她向往这种都市生活,也喜欢北京的节奏和自由感,虽然每天压力很大 , 但小姐姐觉得这里是最能够实现她梦想的地方 。
当然她最大的愿望就是能够在北京有一个属于自己的小家,增加幸福感了 。
30岁时她实现了自己的这个愿望,在北京买了一个三十多平米的小家,把它布置的简约大气时尚 , 一个人也要幸福的生活呀!
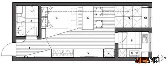
平面布置图

小姐姐家的套内面积是34㎡,主体结构呈长方形 。
卫生间和厨房是独立的区域,其余空间做了一体化的设计 , 这样就能使小家更加敞亮和舒服了 。
室内有两个大的窗户,所以整体的透光性还是比较好的 。

【32岁北漂姑娘的独居生活:独居34㎡小家,美观与实用并存,真羡慕】整个家可以说简约大气又温馨,由于小姐姐是设计师的原因 , 在家装设计当中自然也有专属于自己的独到见解,所以她的家装细节性满满 。
虽然谈不上有多么的豪华 , 但是却简单中透露着舒服,住在这样的一个小家里面,怎么会没有幸福感呢?
玄关

整个玄关处可以说巧妙地利用空间,同时又创意感和设计感十足,原木色包裹着玄关空间 , 可以说一进去便给人一种舒服大气的感觉 。
进门左侧是一组超薄的翻板鞋柜 , 墙壁上简单地用图片来点缀,能够增加丰富感 。
右侧巨大的长方形全身镜还加了一些光源,不仅给小空间增加通透感,而且也精致又美观 。

玄关右侧过道做了三角形的斜角地台设计,这里可以当作换鞋凳 , 同时下面的柜子还可以储物 。
墙壁上再放置着几个挂钩,这样挂放衣服都是非常方便的 。
卧室

进门再往里走,便是卧室了,卧室区采用了开放式的地台设计,创意又美观 。
床一侧打造了开放式的储物格 , 一些书籍和创意品都可以放置在这里做展示,增加空间的丰富度 。
下面是三角形区域,可以当作沙发和读书的地方 , 整体的设计还是非常实用的 。

床上用品和墙壁均是白色的,搭配上周围的原木色,再加上几盏暖色调的光源点缀,这种搭配真的是让人觉得格外温馨 。
床头的墙壁上 , 两个壁灯之间还悬挂了一幅黑白线条的装饰画作为点缀,简约又大气 。
客餐厅

餐桌摆放在靠近床尾的一侧,位于整个房间中间的位置,小小的餐厅也是精致感和格调感十足 。

床尾的地台也可以作为餐椅,再搭配长方形的餐桌和两把椅子,这样有朋友来的时候便有足够的空间用来招待客人 。
餐桌收拾得整整齐齐 , 墙壁上再用艺术画作为点缀,而且吊灯也是错落有致,真的是一个非常精致的角落了 。
这便是设计师用最简单的元素便能够打造出最美观和实用的效果 。

客厅电视背景墙也是用原木色的木板做了整墙的电视柜,既美观又实用 。
中间区域是镂空式的设计,电视下面的柜子也可以储物,旁边还预留了冰箱的位置,这样既不拥挤,而且也非常有造型感,整体还是很美观的 。
由于小姐姐的衣物比较多,所以客餐厅以及卧室的墙壁顶端都设计了吊柜 , 增加收纳空间,这样小姐姐即使衣物再多 , 也可以很好地进行收纳了 。
阳台

靠窗户的地方有一个很舒适的休闲区,也是做了地台的设计 , 摆放的软垫下面还可以储物,实用又舒适 。

墙壁上是置物架 , 不仅增加丰富感,而且可以摆放创意品 。
卫间

卫生间是非常现代化的设计,这也是现在年轻人们比较常用的一种设计方式 。
白色的长方形防水瓷砖 , 搭配上灰色的美缝,干净大气 。
镜子同时也是储物柜,旁边还有开放式的储物格 , 再多的化妆品也可以很好地收纳了 。

最里侧是淋浴区,虽然没有做干湿分离,但是这样也是很干净的 , 黑白的配色,既大气又时尚 。
卫生间不需要有多么的豪华,最重要的是干净和实用 , 做到这两点基本上都是非常好的设计了 。
【结语】
这个32岁的北漂小姐姐说,她虽然现在还没有结婚,但是有房子就有满满的安全感 , 而且工作也很稳定,收入不断提高,这样的生活又有谁是不羡慕的呢?
将这个不大的小家装修成自己喜欢的简约风,过自己想过的生活,干自己想干的事 , 简单又快乐就足够了 。
猜你喜欢
- 关汉卿北漂大都时过得是怎么样的生活?
- 26岁白手起家开始创业 32岁便身家47亿 震惊世界 18岁创业从哪入手
- 张飞娶夏侯姑娘到底是不是名正言顺的?
- 情感隔离百科 情感百科网
- 古代姑娘在十三四岁的时候 她们为何都要早早嫁人
- 分手挽回小技巧 情感挽回小技巧
- 怎么画简笔画 灰姑娘简笔画教程
- 妻姐和姑娘的区别是什么 妻姐和姑娘的区别
- 姑娘果的播种方法 姑娘果什么时候种怎么种
- 张飞是如何娶上夏侯家的姑娘呢?
